صحیح تر است این سوال را به این شکل مطرح کنیم: در چه دهانه هایی از سقف وافل با عملکرد یکطرفه استفاده شود و در چه دهانه هایی از سقف وافل با عملکرد دوطرفه.
برای این سوال یک جواب قطعی و واحد وجود نداره، ولی می توان بر اساس پلان اولیه و ستون گذاری آن، پیشبینی ابتدایی انجام گیرد و پس از طراحی سازه و عملکرد آن برای انتخاب نوع سقف وافل تصمیم گیری کرد.
در این مقاله سعی شده شاخص ها و موارد استفاده هریک از سقف های وافل یکطرفه و دوطرفه در انواع پلان ها دسته بندی و ارایه گردد.
به طور کلی در مورد 90درصد پروژه ها، این موارد صدق می کند:
نکته ایی که باید مد نظر باشد این است که ظاهر اجرای سقف وافل، بیانگر عملکرد کلی سقف نیست، تناسب دهانه و نحوه توزیع بار هست که عملکرد یک طرفه یا دوطرفه بودن سقف را مشخص می کند ، این نکته را مهندس محاسب حتما باید در طراحی سازه مد نظر داشته باشد.
وزن بتن وافل یک طرفه در دهانه ها و ابعاد مختلف وافل بین 250 الی 340 کیلوگرم بر متر مربع و در وافل دوطرفه بین 320 الی 460کیلوگرم بر متر مربع است، با توجه به اعداد فوق، بدیهی است که وافل یک طرفه از نظر وزن سبکتر و در دهانه های کمتر از 8متر از نظر اقتصادی بسیار کمتر از وافل دوطرفه است.
در پلان های معماری اگر ابعاد دهانه و فاصله بیشتر ستون ها بر هزینه اقتصادی سازه ارجحیت داشته باشد و یا محدودیت ارتفاع تیر داشته باشیم، وافل دوطرفه نسبت به سایر سیستم های سازه سقف مناسب ترین گزینه است. یک سوال دیگر که معمولا مطرح می شود این است که دهانه بلند تر از 15 متر بهتره با چه روش طراحی گردد، برای پاسخ به این سوال نیاز به مطالعه و بررسی بیشتر پلان، ارتفاع سازه، کاربری، بارهای وارد بر سازه، بحث لرزه خیزی مکان پروژه و … می باشد، که با توجه به تجربیات گذشته استفاده از قالب وافل با ابعاد و ارتفاع بزرگتر و یا ترکیب سیستم بسیار کاربردی “پس کشیده و سقف وافل” می توان به نتایج بسیار قابل توجه ازر نظر اقتصادی دست یافت. در این خصوص پیشنهاد می گردد فیلم نحوه محاسبه سازه هتل رز صدرا شیراز که با همکاری مجموعه فنی مهندسی گرین وافل طراحی و اجرا گردیده و دارای دهانه 18*40 متر می باشد را ملاحظه فرمایید. طراحی سقف این پروژه با ترکیب سیستم سقف پس کشیده و وافل دوطرفه انجام شده و دارای نکات قابل توجه و مفید می باشد
در سالیان اخیر سقفهای دال مجوف بتنی و سقف وافل مورد استقبال صنعت ساختمان کشور قرار گرفته است . در این نوع سقفها هدف حذف بتن ناکارامد در بخش هایی از سقف میباشد تا با کاهش حداکثری در وزن مرده سقف و حداقلی در سختی خمشی سقف بتوان دهانه های بلند را به طور اقتصادی پوشش داد. در سقف وافل از قالب غیرماندگار گرین وافل برای ایجاد حفره در سقف و حذف بتن ناکارمد استفاده میگردد.


سقف وافل (Waffle Slab) دارای پشتوانه فنی و آزمایشگاهی و تجربه عملکرد مورد قبول در زلزله های متعدد در سراسر جهان میباشد و صریحاً در آیین نامه های ملی مانند مبحث 9 مقررات ملی ساختمان و آییننامههای بینالمللی مانند آیین نامه بتن آمریکا ACI318 مورد اشاره قرار گرفته و ضوابط کامل کاربرد و طراحی آن در این آییننامهها تدوین شده است. این سیستم در آیین نامه بتن ایران نیز به عنوان یکی از سیستم های قابل قبول عنوان شده است.
لازم به ذکر است که در فهرست بهای واحد پایه رشته ابنیه سازمان برنامه و بودجه کشور نیز آیتم وافل موجود می باشد (آیتم 05405).
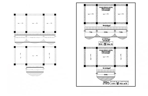
مقایسه عملکرد سیتم سقف وافل یک طرفه و وافل دوطرفه را می توان در شکل زیر مشاهده کرد


با توجه به اینکه در سقف وافل یک طرفه ، بارگذاری اصلی بر روی دوتیر مقابل هم اعمال می شود، هرچه دهانه بلندتر باشد باعث می شود ارتفاع تیر در طراحی سازه افزایش یابد که در دهانه های بلند باعث کاهش ارتفاع مفید سقف خواهد شد، از اینرو دهانه بیشتر از 8متر، بهتر است از وافل دوطرفه استفاده شود، که انتقال بار سقف به چهارجهت دهانه منتقل و ارتفاع تیر کمتری حاصل شود، ولی اگر آویز تیر مزاحمتی برای ارتفاع تمام شده سقف نداشته باشد- مثلا زیر تیر تیغه چینی انجام شود- از نظر اقتصادی بهتر است از وافل آکس 75 و ارتفاع 30 به صورت وافل یک طرفه و تا دهانه 10متر استفاده شود.
روش دیگری که پیشنهاد می گردد این است که در یک پلان به صورت ترکیبی از وافل یک طرفه برای دهانه های کوتاه و از وافل دوطرفه برای دهانه های بلند استفاده گردد، دراینصورت محاسب سازه باید به سختی بیشتر سقف وافل دوطرفه نسبت به بقیه قابها که از وافل یک طرفه استفاده شده توجه داشته باشد و درصورت لزوم در طراحی سازه آن را اعمال نماید.

یکی دیگر از قابلیتهای سقف وافل یک طرفه اجرای تیرچههای پیوسته در این سیستم میباشد. در این صورت لنگر خمشی وسط دهانه به صورت چشمگیر کاهش مییابد، که این امر باعث کمتر شدن میلگرد خمشی پایین تیرچه میگردد. همچنین برای کنترل تغییرشکل تیرچه ها(بدون استفاده از روش دقیق) طبق مبحث نهم مقررات ملی ساختمان برای تیرچههای یک طرف پیوسته از رابطه L/24 و برای تیرچههای دوطرف پیوسته از رابطه L/28 استفاده میشود. در صورتی که در تیرچههای دو سر ساده از رابطه L/20 بایستی استفاده شود.

همانطور که از مقایسه نمودار فوق مشخص است، طراحی و اجرای وافل یک طرفه در دهانه های بلند نیز قابل اجراست و این از مزیت بسیار مهم و شاخص این سقف نسبت به سقف های تیرچه بلوک(یونولیت) می باشد، که بدون نیاز به تیرچه دوبل و با کاهش قابل توجه بتن و میلگرد در دهانه های قابل اجرا است.
سقف سازه به عنوان یک عضو تاثیر گذار در هزینه تمام شده ساختمان و نیز عملکرد آن در رفتار ساختمان به خصوص در زمان وقوع زلزله از اهمیت فوق العاده ایی برخوردار است و انتخاب صحیح نوع سقف مستلزم بررسی دقیق و علمی می باشد. مجموعه فنی مهندسی گرین وافل به عنوان اولین تولید کننده، مشاور و مجری تخصصی سقف وافل نوین در ایران، با سالها تجربه و تحقیق علمی، در ایران و صدور خدمات مهندسی (طراحی و اجرا) به کشورهای منطقه از جمله عراق، کویت، عمان، جمهوری آذربایجان و افغانستان، آماده ارایه مشاوره و همکاری با مهندسان، سازندگان و مجریان عزیز می باشد.
نویسنده: مهندس مسعود پروین